-
今天
杭州正野打造中国木雕博物馆展厅:六大展厅8000年木雕史
2016年
已经正式进入倒计时
每年此时谁都想说些什么
致过去与未来
正野公众号开通半年
有个经常出现在推文里却没有细讲的作品
中国木雕博物馆
本期小编想用两年前的这个项目
为2016年,划下句点。
正野作品【中国木雕博物馆】
在中国传统手工中体会中华智慧
从东方生活艺术中发现生命故事

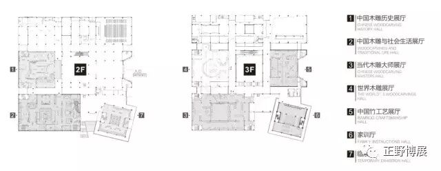
中国木雕博物馆总建筑面积近2.6万平方米,分为六大空间:中国木雕历史展厅、中国木雕与社会生活展厅、当代中国木雕大师展厅、世界木雕展厅、竹工艺专题展厅、临展厅。


刀木春秋 — 中国木雕历史
本展厅纵向梳理中国木雕8000多年的发展脉络,自原始社会至明清,分为“刳木伊始”、“攻木为业”、“浑雕细琢”、“登峰造极”四大阶段,遴选各时期经典木雕文物作品,呈现丰厚的历史底蕴与悠久的工艺传承。












雕花世界 — 中国木雕与社会生活
本展厅普及木雕基本常识,横向剖析木雕在传统生活中的重要意义,从宫廷到民间,从公共场所到私家宅院,将源于生活的木雕回归生活场景,营造异彩纷呈、美轮美奂的雕花世界。

















大师集萃 — 中国木雕大师
本展厅荟萃中国工艺美术大师、中国木雕艺术大师等当代木雕大师的顶尖力作,反映当代中国木雕的最高艺术水平,展现新时期中国木雕的传承发展之路。



洋洋大观 — 世界木雕
本展厅精选非洲、美洲、欧洲、亚洲、大洋洲风格特异、技艺卓绝的木雕代表作品,走进木雕世界,领略世界木雕,以期拓展视野,促进木雕行业的开放与交流。






雕花世界的生活,也许正在离我们远去。但位于浙江东阳、集成世界木雕精品的中国木雕博物馆,则把我们带入了另一个镂月裁云间的流年美梦。
“六大展厅,六种个性,共同构成了一座多元、多样、多彩、完整、专业、包容的木雕艺术殿堂,是一部向世人展示中国木雕发展演变和木雕精品的生动教科书。”——史苗(东阳中国木雕城董事长、浙商建业总裁)
