- 图片
- 开化两山展示馆设计:践行“两山”理念,探索生态富民绿色发展之路
-
分享 10-20

绿水青山就是金山银山
开化两山展示馆
记殷殷嘱托 勇于示范担当 钱江源头开化:在践行“两山”理念中绿色崛起
从“生态立县”的振臂一呼,到国家公园的探索先行;从“一江清水出开化”的使命担当,到百里金溪画廊的“两山”实践;从关停200多家污染企业的“壮士断腕”,到近千家民宿拔地而起的“风起云涌”,如今,绿色发展、生态富民的钱江源头“大花园”风景正好。
开化吹响了“努力建设展示新时代生态文明思想示范窗口”的号角,开化上下必将瞄准新方位、扛起新使命,以创建国家“两山”理念实践创新基地为建设“示范窗口”的有力抓手,咬紧目标抓紧干,撸起袖子加油干,为新时代生态文明思想生动实践和生态文明建设制度体系提供更多的开化素材、积累更多的开化经验。




开化生态建设情况
开化是“两山”的重要萌发地,在探索“两山”转化的路径上也作了很多有益的探索,生态产品价值实现研究机制开县在县一级单位中起步最早,发展最好的县级单位。
开化生态之路:
1.1997年,率先在全国开展生态示范区建设;
2. 2000年,开化县在全国率先确立并实施“生态立县”发展战略;
3. 2003年编制完成的全国第一个生态县建设总体规划;
4. 2006年,开化县第十二次党代会,作出了深入实施“生态立县、特色兴县”两大战略,把建成生态县作为全县两大主题目标之一,列入《开化县国民经济和社会发展第十一个五年规划纲要》;
5. 2009年,县委、县政府进一步深化战略思路,提出走“产业高新、小县大城、生态发展”之路;
6.2011年7月,被国家环境保护部命名为“国家生态县”,同时被列入全国第三批生态文明建设试点县;
7.2013年提出了打造国家公园,在探寻保护与发展共赢道路上对“生态立县”战略进一步拓展提升;
8. 2013年8月,衢州市委六届四次全会提出了建设国家休闲区战略,把开化建设国家东部公园作为当前衢州重点工作之首,要求举全市之力进行建设,让开化在建设国家休闲区战略中当好排头兵、成为先行区;
9. 2013年11月,省委十三届四次全会做出“谋划推进开化等县生态主体功能区建设试点”的决策部署;
10.2014年1月,成功入选浙江省重点生态功能区示范区建设试点;
11.2016年6月,国家发改委批复钱江源国家公园体制试点区试点方案,从而成为全国第四个国家公园体制试点;
12.2016年9月,成为浙江省首批11个被纳入国家重点生态功能区县(市)之一;
13.2018年荣获省级生态文明建设示范县。
至今
一抹“源头绿”,守护绿色发展
让苏庄村护林员汪树龙没想到的是,当了多年的伐木工,有一天能摇身一变,成为大山的保护者。
“九山半水半分田”,开化靠山吃山,但吃的却是砍树、烧炭的辛苦钱。20多年前,仅苏庄镇,一年就要砍伐近一万亩山林。汪树龙回忆,以前那种烧炭的窑,一个月差不多就要消耗2万斤柴火,都是山上砍下来的。
那时候的古田山,光秃秃的一片,基本上被采伐殆尽。古田山的困境,成为当时开化整体发展的一个缩影。一方面,砍伐树木带动的造纸、木材加工业成为主导产业,带来了一年10亿元以上的产出效益;另一方面,这些产业重污染、高能耗,开化的发展之路越走越窄。

一条转型路,迈向生态富民
从“卖山林”到“卖生态”,音坑乡下淤村村民早已尝到甜头。
15年前,下淤村村民“靠山吃山”,滥伐山林、滥挖河沙屡禁不止。村党支部书记叶志廷回忆,那时马金溪里,挖沙船马达隆隆作响,河道被挖得坑坑洼洼。挖沙砍树等破坏生态环境的发展方式,让村集体收入一度为负数。而林木沙石资源开发殆尽,村民只能以外出打工为生,打工收入一度占到村民收入的70%以上。

开县生态情况分析


陈列展示目标:
形象: 打造全国及浙江全新的两山理论新名片展示形式上国际化、超前化
内容: 概况全国两山理论创新模式及全省相关政策,重点展示开化是“两山”理论的重要萌发地,开化县在探索“两山”转化的路径上作了很多有益的探索
功能: 打造成为及展览、兄弟单位交流、研学旅游一体化的综合展览馆
目标: 建设成为招商引资、生态资源整合开发经营的综合服务信息平台
展陈逻辑线:

从“生态立县”的振臂一呼,到国家公园的探索先行;从“一江清水出开化”的使命担当,到百里金溪画廊的“两山”实践;从关停200多家污染企业的“壮士断腕”,到近千家民宿拔地而起的“风起云涌”,如今,绿色发展、生态富民的钱江源开县风景正好。
开化县委十四届十次全体(扩大)会议吹响了“努力建设展示新时代生态文明思想示范窗口”的号角,开化上下必将瞄准新方位、扛起新使命,以创建国家“两山”理念实践创新基地为建设“示范窗口”的有力抓手,咬紧目标抓紧干,撸起袖子加油干,为新时代生态文明思想生动实践和生态文明建设制度体系提供更多的开化素材、积累更多的开化经验。

展示手段 :
互动化: 采用互动媒体使观众与历史时空的相聚
写实化: 利用场景等手段将难以言表的开县两山实践充分表现
具象化: 将成果利用产品、模型虚拟场景等艺术言语展示
集中化: 集中文字图版展示各个部分,以达到集中影响力
形象化: 利用声像光影的空间形式,生动的传达未来展望震撼之感




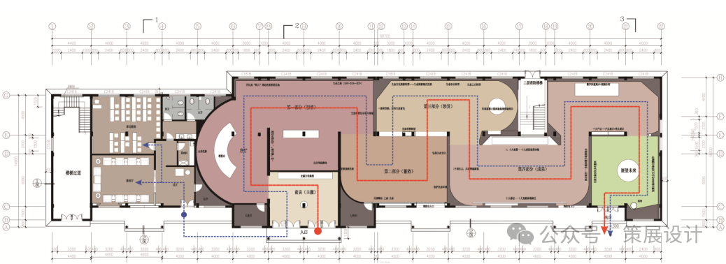
两山展示馆在功能布局上每一板块区分明确,以大开大合的空间结构进行设计,每一板块有区分有结合,整个空间使用飘带相连与展示逻辑“两山萌发、两山蓄势、两山勃发、两山成果、未来展望”完美结合,在物理层面上形成一条指引参观动线,在意识层面是开化县两山实践的发展史。


以象征开化县山水资源的灵动优美曲线来营造开阔的前厅(过厅)空间,巨幅油画全面展示开县生态之美,同时前厅(过厅)同时兼顾接待与休息功能


厅以VCR投影视频结合开化县全域电子LED沙盘宣传开化县地理位置、两山发源、生态美好等优势 ,与LED软膜屏包柱及开化县特有的钱江源水文化元素飘带设计形成一幅开化县特有的生态画面,使步入展厅的参观者一下子就融入开化县美丽的生态环境中。


第一展厅主要讲两山萌发和体验学习两山文化等内容,震撼的多屏联动效果把开化县两山发展历程以动态引目效果呈现给观众,让参观者非常轻松愉快的接受年代符号,两边介绍开化县两山萌发!


智慧物体识别OR互动游戏体验桌面结合软膜LED屏让两山研究者、兄弟单位、普通观众在一个欢快的平台学习体验两山理






















































- 设备组成
- 无
- 参考预算
- 无
