- 天津京杭大运河创想中心设计解析 | 工业遗产改造案例
-
2025-10-29

天津·京杭大运河创想中心
URBANUS都市实践
01
前言
foreword
柯布爱说:“一栋建筑,一座宫殿。”这个设计态度特别适用于工业遗产的再利用。一方面,厂房天然地拥有宫殿的尺度;另一方面,只有常怀这种敬畏之心,才能把厂房的宫殿气质雕刻出来。
三十来年前,北方城市满街跑的黄色的天津大发“面的”,成了刚开始学会打车的中国民众心中不可磨灭的一个城市记忆。
追根溯源,生产它的美亚汽车厂位于天津西青区中北镇,围墙之外是流淌了上千年的京杭大运河。如今运河的这个段落已经被改造为漂亮的滨河绿化带,而围墙之内的工厂也早已动迁多年。大运河申遗的成功促使了中北镇引进华侨城LOFT创意园,不仅要实现产业转型,也希望用新的城市空间类型激活运河两岸的城市生活。
"A building, a palace," said Cobb Love. This design attitude is particularly applicable to the reuse of industrial heritage. On the one hand, the factory building naturally has the scale of a palace; on the other hand, only with this kind of awe can the palace temperament of the factory building be carved out.
Thirty years ago, the yellow Tianjin Dafa "face" that ran all over the streets of northern cities became an indelible memory of the city in the hearts of Chinese people who had just learned to take taxis.
Tracing its origins, the Meiya Automobile Factory that produces it is located in Zhongbei Town, Xiqing District, Tianjin. Now this section of the canal has been transformed into a beautiful riverside green belt, and the factories within the walls have been relocated for many years. The successful application of the Grand Canal to the World Heritage List prompted Zhongbei Town to introduce the OCT LOFT Creative Park, not only to achieve industrial transformation, but also to use new urban space types to activate urban life on both sides of the canal.
为了不影响后续开发,作为整个园区的启动项目“运河创想中心”,选址在厂区东北角最不起眼的一座厂房,虽然临街,但是位于人流到来方向的最远端,隐蔽在一丛杨树林后面。这个不利的位置反而激发了设计灵感:从厂房生长出一条近两百米长的折形台阶连接入口,它不仅仅隐喻着大运河畔这条搁浅的巨轮重新起航,还因此巧妙地放大了厂房的体量,加强了向它趋近时行走的礼仪感。走到近前,台阶隆起,变成通向二层门廊雄伟的大楼梯,一下子使朴素的、有扶壁立柱的厂房山墙面显得庄重而典雅,有如希腊神庙,宫殿感却呼之欲出。
In order not to affect the subsequent development, as the start-up project of the entire park,"Canal Creation Center", the most inconspicuous factory building in the northeast corner of the factory area is located. Behind. This unfavorable position inspired the design inspiration: a nearly 200-meter-long folded step grows from the factory building to connect the entrance, which not only symbolizes the restart of the stranded giant ship on the Grand Canal, but also subtly enlarges the factory building. The volume of the building strengthens the sense of etiquette when walking towards it. As you approach, the steps rise and become a grand staircase leading to the porch on the second floor. Suddenly, the simple gabled wall of the factory building with buttresses and columns looks solemn and elegant, like a Greek temple, but the sense of palace is ready to emerge.




走进二层门廊,展厅的主体量被设计为与山墙外皮脱离,在通透的天窗下,用太阳的光影刻画出新旧对比:一面是原原本本的山墙里侧,记忆了各种使用及施工的痕迹,不饰雕琢;一面则是通高的大玻璃墙,透视出里侧需要认真筹划的大展厅。与这个开放的空间相对比,一条弧形锈钢板走道把观众从隧道中引入展厅。
Walking into the porch on the second floor, the main body of the exhibition hall is designed to be separated from the outer skin of the gable. Under the transparent skylight, the light and shadow of the sun are used to depict the contrast between the old and the new: one side is the inner side of the original gable, which remembers various uses and constructions. Traces are not decorated with carvings; one side is a large glass wall with full height, which shows the large exhibition hall on the inside that needs careful planning. In contrast to this open space, a curved rust-steel walkway leads the audience from the tunnel into the exhibition hall.







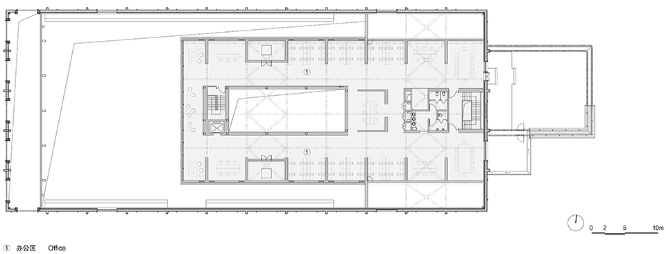
这个原本两千多平米的厂房,要改造成五千多平米的使用空间,除了有作为大型展示的运河创展中心,还有科层制度严格的总部办公及其配套,和接待、会议、咖啡等附属功能,加起来需要变成三层的空间。原建筑的层高也比较有限,屋架下弦距离地面只有7.5米,而要利用屋架空间,则需要另立独立结构。这些条件限制最终推导出一个布局简单、却有丰富的空间层次和逻辑的观览动线的组织架构:平面上把展厅和办公前后一分为二,剖面上则一分为三,把主展厅夹在底层和上层的办公中间,最大化彼此间的互动。这样,将主展厅的地面抬到二层标高后,观众和厂房最有魅力的屋架也接近了。
The original factory building of more than 2,000 square meters will be transformed into a usable space of more than 5,000 square meters. In addition to the Canal Innovation and Exhibition Center as a large-scale exhibition, there is also a headquarters office with strict bureaucracy and its supporting facilities, as well as reception, conference, coffee Auxiliary functions, etc., need to add up to three floors of space. The floor height of the original building is also relatively limited, and the lower chord of the roof truss is only 7.5 meters from the ground. To use the roof truss space, a separate structure is required. These constraints finally deduce an organizational structure with a simple layout but rich spatial hierarchy and logic: the exhibition hall and the front and rear of the office are divided into two in plan, and three in section, and the main exhibition hall is divided into two parts. Sandwiched between the offices on the ground floor and the upper floor to maximize the interaction between them. In this way, after lifting the ground of the main exhibition hall to the second floor level, the audience and the most attractive roof truss of the factory are also close.




在这样一个普通的厂房里,当人置身于三米来高的上空中屋架的矩阵中时,不仅仅感悟浓烈的工业厂房气息,也体验着建筑构架重复的节奏所带来的空间的秩序,宛若进入了讲究礼仪的宫殿。从室外延续到市内的锈钢版的暗红色,显得沉着稳健;而上层空间外维护饰面的白色张拉网,交织在错综的屋架之中,又有一种朦胧飘逸。点缀着一些锈板的白色空间氛围中,下沉到地面层的黑色大看台,成为展厅的第一个空间焦点,章显出宫殿般的空间力量。
In such an ordinary factory building, when people are in the matrix of the roof trusses that are three meters high, they not only feel the strong industrial factory atmosphere, but also experience the order of the space brought by the repeated rhythm of the building structure. It's like entering a palace that pays attention to etiquette. The dark red of the stainless steel version that continues from the outdoors to the city appears calm and steady; while the white tensioned mesh for the maintenance finish outside the upper space is intertwined in the intricate roof trusses, giving it a hazy elegance. In the white space atmosphere dotted with some rust boards, the black grandstand sinking to the ground floor becomes the first spatial focus of the exhibition hall, and Zhang shows the power of space like a palace.












主展厅层是“回”字的布局,两侧的长墙略微倾斜,这个坡度在剖面上的反复推敲,有许多的考虑:让原厂房的外窗保留原状,不因楼层分割而分层;为地面层靠外墙两侧的区位提供狭而高的空间;又让主展厅的展墙和原建筑的墙面脱开;当然,视觉上最有意义的是让这道三十来米长的展墙再加上一点张力,表现出宫墙般的力度。直径叙事的展陈设计在这道墙上更是锦上添花,开了几个像轮船舷窗似的圆形展窗,点醒了沉睡的厂房再起航的主题。
The main exhibition floor is in the layout of the word "Hui", and the long walls on both sides are slightly inclined. The repeated deliberation of this slope in the section has many considerations: let the outer windows of the original factory building remain as they are, and not be layered due to floor division; Provide a narrow and high space for the areas on the ground floor on both sides of the outer wall; separate the exhibition wall of the main exhibition hall from the wall of the original building; of course, the most visually meaningful is to make this 30 meters long With a little tension on the exhibition wall, it shows the strength of a palace wall. The exhibition design of Diameter Narrative is the icing on the cake on this wall. Several circular exhibition windows like portholes of ships are opened, which awakens the theme of the sleeping factory building and sailing again.





徜徉在两侧白色展厅里,隐隐能够听到节奏感很强的音乐,循声走到展厅最东端的走廊,一座真正的圣殿呈现了:这里悬挂着直径叙事主持设计师李德庚老师和他的艺术家朋友周文斗设计和制作的大型装置,把一部大运河史重新解构和建构,用完全脱俗的方式呈现出历史、现在和未来三位一体下大运河所包含的叙事和意义,以及它在当下的语境下对观众的又一次震撼和启迪。是的,这个运河展厅的空间高潮就叫“行水圣殿”,埋在这栋厂房深处,与室外大台阶所升华的殿宇般的厂房山墙互应互文,让这一栋厂房,变成了一座宫殿。
Wandering in the white exhibition halls on both sides, you can faintly hear music with a strong sense of rhythm. Follow the sound to the corridor at the easternmost end of the exhibition hall, and a real sanctuary is presented: here hangs the diameter narrative host designer Li Degeng and his The large-scale installation designed and produced by artist friend Zhou Wendou re-deconstructs and constructs a history of the Grand Canal, and presents the narrative and meaning of the Grand Canal under the trinity of history, present and future in a completely refined way, as well as its current significance. Another shock and inspiration to the audience in the context. Yes, the spatial climax of this canal exhibition hall is called the "Water Temple", which is buried deep in the factory building and interacts with the temple-like gable wall of the factory building sublimated by the large outdoor steps, so that this factory building, turned into a palace.




完整项目信息
项目名称:天津·京杭大运河创想中心
项目类型:景观/厂房改造
项目地点:天津·中北镇
建设单位:天津华侨城
设计单位:URBANUS都市实践
主持建筑师: 王辉
建筑设计团队完整名单:姚咏梅、郑娜、张富军、郝钢、石浩、梁雪成、姚翔、王喆、李永才、徐卓然、陈宇、方轶楠、武婧、高子絮、孟江璞 | 秦嘉悦、许涵泳、赵丽璐、刘子莘(实习)
设计时间(起迄年月):2017-2018
建设时间(起迄年月):2018
用地面积(平方米):13,000平方米
建筑面积(平方米):2,800平方米(改造前);5,630平方米(改造后)
规划、建筑、景观、室内设计:URBANUS都市实践
结构鉴定与施工图设计:天津市房屋鉴定建筑设计院
策展及展览设计:直径叙事设计
团队成员:李德庚(策展人/总设计师)、周文斗(艺术总监)、白金、陈玲、付頔、关一为、凌勇、李嘉辉、马妍灵、徐晓茵、徐诗涵、杨率
平面设计:石松子设计顾问
新媒体设计:SIgnal α
灯光设计:吉晟通照明
影视媒体:铸间影像/ 深圳杰尔斯展览服务有限公司
展陈施工:深圳杰尔斯展览服务有限公司
装置制作:上海建谆景观工程有限公司
专家顾问:运河研习社、设计营
照明设计:北京光影同创城市文化发展有限公司
施工:中铁建工集团有限公司西北分公司
摄影师:夏至
影视:夏德岛
