- 图片
- 重庆城市规划馆空间设计:在弹子石邂逅两江交汇,体验5G+AI沉浸互动
-
分享 01-28
01 项目概况
重庆城市规划项目选址于南岸区南滨路弹子石广场二期,与朝天门、江北嘴隔江相对,在此处能够清晰观赏到长江与嘉陵江两江交汇的壮丽景观。本项目旨在对现有建筑进行改造,总建筑面积约17000平方米。其中,1-4层建筑面积为13317平方米,负一层建筑面积达3683平方米。

02 项目定位
向世界讲述“重庆故事”,展示重庆规划建设成果、未来发展蓝图,彰显习近平新时代中国特色社会主义思想在重庆的实践。
向世界彰显“重庆自信”,搭建重庆与世界交流、合作的重要平台,扩大城市知名度、提高城市影响力,促进经济社会发展。

03 展示理念
景馆合一 美美与共,延续建筑“融山融水”理念,打造“看得见风景的最美展馆”。美在观景:室内外风景的呼应打破传统规划馆等于黑匣子的固有思维,将建筑的玻璃幕墙完全保留,并将室外江景巧妙“借”入馆中,成为展示的一部分;室外的两江四岸实景,室内的两江四岸模型,一虚一实、相映成趣。




04 设计亮点
机械矩阵演示系统由数千台伺服电机带动LED模块作水平直线运动,通过自动化程序控制来实现各种立体图形效果的变化。机械抓臂飞行座舱180度整舱旋转+飞行姿态高仿真模拟+沉浸式巨幕影像2.0版本的飞行影院,将为观众开启一段奇幻的真实之旅。
5G+AI沉浸式互动乐园以5G网络、人工智能等为依托,将现代科技与重庆文化巧妙连接,让观众在趣味的交互中,沉浸在充满幻想的数码艺术世界里。


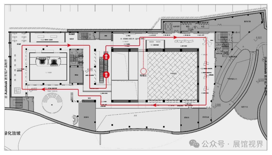
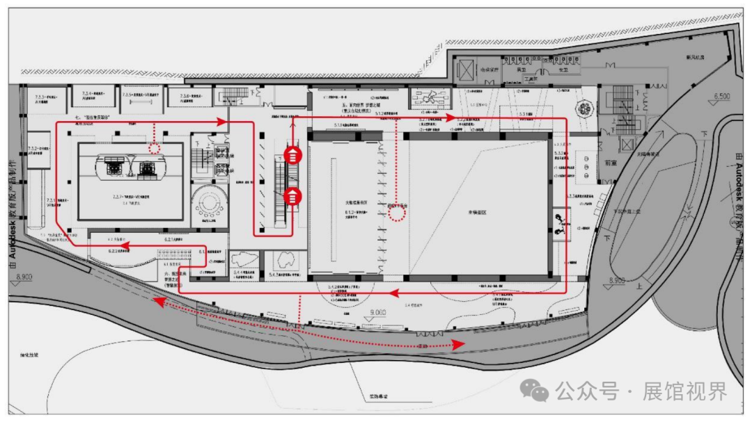
05 平面分析
在设计规划上,项目打造了一个线性的空间秩序,巧妙地借助事件的起伏来驱动整体空间的组合以及情绪氛围的营造。当观者踏入每一个空间,都会被其独特的情绪所感染,这种沉浸式的空间体验成为了整个规划馆的亮点所在,极大地增强了参观者的互动感与记忆点。



06 空间设计
序厅空间设计:其充分结合重庆 “山城、江城” 的特色,提炼出灵动的曲线造型,使之贯通整个序厅空间,淋漓尽致地彰显出重庆独特的城市风貌。序厅内配备由伺服矩阵控制的 LED 大屏,每一块屏幕都能自由伸缩,通过灵活的组合,可呈现出各式各样的文字和图案造型。配合极具视觉冲击感的影像画面,将一个充满魅力、“惊艳世界的重庆” 生动地展现在观众眼前,为观众留下极为深刻的印象,也让序厅成为整个规划馆极具吸引力的开场空间。




前厅空间设计:以 “城市之门” 为概念展开整体空间设计,引领观众一步步深入精彩纷呈的 “重庆世界”。整个前厅造型在透光板下内衬 LED 条屏,灵动呈现习近平总书记寄语重庆的 “两点定位、两高目标” 等重要内容。展馆内的 AR 导游还会重点介绍重庆的 “区位、生态、产业和体制优势”(四大优势),让观众能够更深刻地体会到 “这里大有希望”,全方位感受重庆的发展潜力与无限可能。




在 “天生重庆” 镜像空间,将重庆的各项自然资源集中汇聚于一处影像空间中,生动诠释 “山水林田湖,是一个生命共同体” 的理念。观众只需隔空挥手,就能点亮 LED 大屏,紧接着,一幕幕最美重庆风景便会随之跃然眼前,生动再现重庆浑然天成的自然之美。此外,全域镜像设计营造出万花筒般的视觉特效,给观众带来强烈的视觉冲击,使其沉浸在重庆独特的自然魅力之中,感受大自然的鬼斧神工。


在展现古城重庆营城之道的区域,以重庆历史沿革(千年巴渝、重庆开埠、陪都抗战、直辖发展)为线索,打造了一袭简洁却富有内涵的历史长卷。它以时间为脉络,细致入微地再现重庆 “三千年江州城,八百年重庆府” 的悠久历史沿革。入口处,一扇大气磅礴的古城门缓缓打开,那古老的吱呀声仿佛在诉说着往昔的故事,热情欢迎观众穿越时空的隧道,走进充满历史韵味的 “古城重庆”,开启一场探寻重庆历史文化的奇妙之旅。



在巴渝乡愁(有情怀的街巷)历史街区保护展示区域,基于传统巴渝、明清移民、开埠建市、抗战陪都、西南大区不同历史时期的特色,进行了栩栩如生的场景复原,高度还原了重庆地标街区 —— 十八梯。街区中,结合雕塑复原的 “棒棒军” 形象,生动地诠释出浓浓的巴渝乡愁,唤起人们对老重庆的记忆与情感。后方的数字影像呈现出动态的十八梯街景,人来人往,热闹非凡,让观众仿若真正置身于 “十八梯”,身临其境地感受重庆在历史文化风貌区保护方面的用心与成果,体悟这座城市深厚的历史底蕴和独特的人文魅力。


在巴渝乡愁(有文化的环境)板块,更是别出心裁。这里有碎影、电影里的时光、非遗中的记忆、舌尖上的传承。通过一组精心设计的道具互动装置,带领观众深度了解 “诗人笔下的重庆”“电影里的重庆” 等文化建设内容。在互动过程中,观众可以触摸那些承载着文化记忆的道具,观看与之相关的影像资料,仿佛穿梭在重庆的文化长河之中。这种以亲民的内容、趣味的交互方式,瞬间拉近了与观众间的情感距离,让大家在轻松愉快的氛围里,感受重庆独特而多元的文化魅力,领略这座城市丰富的文化内涵与精神内核。





“时空梦立方” 全域动感飞行影院同样是项目的一大亮点。在这里,呼啸而来的中欧班列,仿佛吹响了 “内陆开放高地” 发展的号角;自由飞翔的成群白鹤,好似舞动出 “山清水秀 美丽之地” 的最美姿态;伸缩转动的机械臂,仿佛智造出 “智慧名城 智造重镇” 的未来。全域动感飞行影院创新性运用了 “数字影像、舞台道具、机械抓臂座椅” 等综合手法,目之所及皆为光影,力求从多维度、多感官为观众呈现一场关于城市的视听盛宴,让观众仿若身临其境,感受重庆的发展脉搏与独特魅力。










免责声明:
1、以上图片及资料内容来源于网络,由我方整理,版权归原作者及其公司所有;
2、本资料仅供学习研究之用,不得用作于商业用途,若侵犯到您的权益,请与我们联系删除;
3、本文章版权归本公众号所有,未经同意不得随意转载,若恶意侵权将追究其法律责任。
- 设备组成
- 无
- 参考预算
- 无
