- 图片
- 成都城市规划馆设计解析:6800㎡展厅,沉浸式体验城市过去与未来
-
分享 01-28
设计概况:成都城市规划馆
位于成都高新区锦晖西一街 88 号。其建筑面积为16980平方米。主楼高 24 层,裙楼为规划展览馆和城建档案馆,规划馆设有四层展厅,后更新为三层,布展面积约 6800 平方米。
Design Overview: The Urban Planning Museum is located at No. 88 Jinhui West 1st Street, Chengdu High-tech Zone. Its building area is 16980 square meters. The main building is 24 stories high, and the podium is used as a planning exhibition hall and urban construction archives. The planning hall has four exhibition halls, which were later updated to three floors, with an exhibition area of approximately 6800 square meters.


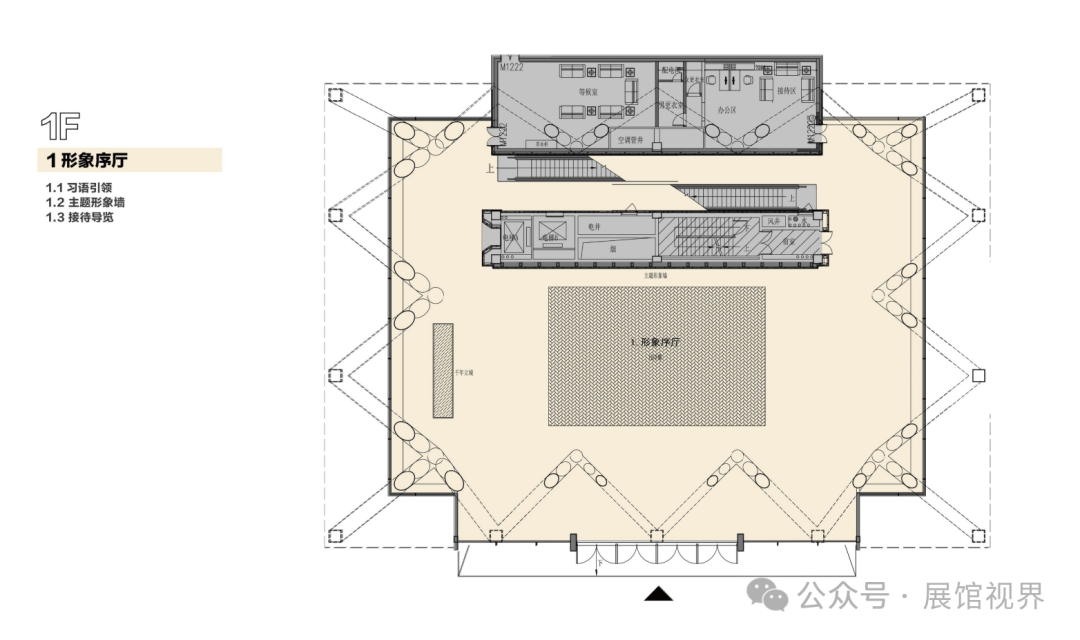
平面布局规划
整个展示区涵盖 1F 至 3F。1F 作为入口大厅,以超大 LED 落地屏幕开启规划馆的精彩篇章。屏幕上,从城市的自然地理风貌,到深厚的历史文化底蕴,再到充满前瞻性的未来规划,依次徐徐展开,带领观众逐步解锁这座城市的独特魅力与历史沉淀。
Plan layout: The entire exhibition area covers from 1F to 3F. The 1F serves as the entrance hall, opening a wonderful chapter in the planning hall with a large LED floor to ceiling screen. On the screen, from the natural geographical features of the city, to the profound historical and cultural heritage, and then to the forward-looking future plans, they unfold gradually, leading the audience to unlock the unique charm and historical accumulation of this city.




空间设计
在序厅区域的空间设计中,对主题形象墙进行了改造升级。墙面增设了落地屏幕,其展示内容与地面的城区格局图地面浮雕相互呼应,营造出一种上下联动的空间对话感。同时,在两侧立柱处精心布置了景观小品,为空间增添了灵动的氛围。在左侧区域,增设了展台,用于展示成都千年立城的历史演变,使观众能够直观地感受这座城市深厚的历史底蕴。
In the spatial design of the lobby area, the theme image wall has been renovated and upgraded. A floor to ceiling screen has been added to the wall, and its display content echoes the urban layout map on the ground, creating a sense of spatial dialogue that links up and down. At the same time, landscape ornaments were carefully arranged at the columns on both sides, adding a lively atmosphere to the space. In the left area, a booth has been added to showcase the historical evolution of Chengdu's millennium old city, allowing visitors to intuitively experience the city's profound historical heritage.


2F 自然地理格局展示空间
自然地理空间的布局别具匠心。以双面山水肌理墙为主体,搭配主题名立体字与前言立体字照壁墙。这种独特的设置,不仅巧妙地点染了公共空间的氛围,还通过图文并茂的立体广告装饰形式,融入当地自然元素,生动地呈现出成都如诗如画的青山绿水自然风貌,让观者仿若置身于成都的绝美山水之间,深切领略其独特的自然魅力。
2F Exhibition Space Design: Firstly, the natural geographical space is designed with a double-sided landscape texture wall, theme name three-dimensional characters, and preface three-dimensional character illuminated wall, which combines the advantages of coloring the public space atmosphere, dissolving the columns in the space (wrapped in the wall), effectively guiding the flow lines (naturally forming right in and left out flow lines), and providing an immersive environment (with unique caves and ensuring a dark environment). The outer channel width is about 6m, which still meets the openness requirements.




2F 历史文化展示空间
同样亮点十足。采用图文与小屏幕相结合的展示手法,以时间轴的形式,将城址迁徙的历史文化清晰地展现出来。观者可以沿着时间脉络,系统地了解城市发展的变迁。同时,现场设置了都江堰主体工程模型,配合先进的 3D Mapping 投影技术,生动演绎工程的特色形态及工程原理。通过这种直观且富有科技感的展示方式,让观众对都江堰这一伟大工程有更深入的理解,感受成都历史文化的博大精深。
In the design and planning of the 2F historical and cultural exhibition space, there are also many highlights. Using a combination of graphics and small screens, the historical and cultural aspects of the city's relocation are clearly presented in the form of a timeline. Viewers can systematically understand the changes in urban development along the timeline. At the same time, the main project model of Dujiangyan Irrigation Project was set up on the site, which, together with the advanced 3D Mapping projection technology, vividly demonstrated the characteristics and principles of the project. Through this intuitive and scientific display, the audience can have a deeper understanding of the great project of Dujiangyan Irrigation Project and feel the profound history and culture of Chengdu.







3F 城市宜居展示空间
聚焦于 “城市级 - 区级 - 街道 (乡镇) 级 - 社区 (村) 级” 四级城乡公共服务设施体系。在公共服务设施布局方面,着重呈现重大区域型设施,精心打造 15 分钟社区生活圈,以及展示 “一站式” 邻里人家的便捷模式。为烘托出美好生活的场景氛围体验,在空间左侧设计了成都各个经典的场景打卡点,并设立多屏 + 听筒模式。在这里,参观者能够聆听各个场景中的人文故事,沉浸式感受浓郁的成都市井气息,全方位领略成都这座城市的宜居魅力与人文温度。
In the design and planning of the 3F city livable exhibition space, the focus is on the four level urban-rural public service facility system of "city level - district level - street (township) level - community (village) level". In terms of the layout of public service facilities, emphasis is placed on presenting major regional facilities, carefully creating a 15 minute community living circle, and showcasing the convenient mode of "one-stop" neighbors. To enhance the atmosphere and experience of a beautiful life, classic scene check-in points from Chengdu have been designed on the left side of the space, and a multi screen+earpiece mode has been set up. Here, visitors can listen to the humanistic stories in various scenes, immerse themselves in the rich urban atmosphere of Chengdu, and fully appreciate the livable charm and humanistic temperature of this city.





文化传承展示空间
充分利用了多种多媒体技术,致力于将历史文脉、公园城市的魅力以及天府文化特色展现得淋漓尽致。通过精心的场景营造,运用全息柜、透明屏幕、开合屏幕等前沿展示手段,打造出一个个极具代入感的场景。在这里,历史不再是冰冷的文字,而是鲜活地呈现在参观者眼前,让人们能深入体会到天府文化的深厚底蕴与独特魅力,感受到公园城市所蕴含的绿色发展理念与人文关怀。
In the design and planning of the cultural heritage exhibition space, various multimedia technologies are fully utilized, dedicated to showcasing the historical context, charm of the park city, and characteristics of Tianfu culture to the fullest. By carefully creating scenes and utilizing cutting-edge display techniques such as holographic cabinets, transparent screens, and foldable screens, we create scenes that are highly immersive. Here, history is no longer cold words, but vividly presented to visitors, allowing them to deeply experience the profound heritage and unique charm of Tianfu culture, and feel the green development concept and humanistic care contained in the park city.







尾厅
这里利用方形空间,借助数字多媒体三折幕精心营造出沉浸式体验空间。步入其中,参观者将以沉浸式的方式感知成都公园城市的独特形态,仿若穿越时空,提前体验未来公园城市社区的美好生活场景。在这里,自然景观与现代科技完美融合,人们能真切感受到城市发展与生态环境和谐共生的美好愿景,进一步加深对成都公园城市建设理念的理解与向往。
Arriving at the tail hall, a square space is utilized to create an immersive experience space with the help of digital multimedia three fold screens. Entering it, visitors will perceive the unique form of Chengdu Park City in an immersive way, as if traveling through time and space, and experience the beautiful living scenes of future park city communities in advance. Here, natural landscapes and modern technology are perfectly integrated, and people can truly feel the beautiful vision of harmonious coexistence between urban development and ecological environment, further deepening their understanding and longing for the concept of Chengdu Park City construction.


1、以上图片及资料内容来源于网络,由我方整理,版权归原作者及其公司所有;
2、本资料仅供学习研究之用,不得用作于商业用途,若侵犯到您的权益,请与我们联系删除;
3、本文章版权归本公众号所有,未经同意不得随意转载,若恶意侵权将追究其法律责任。
- 设备组成
- 无
- 参考预算
- 无
