- 图片
中国酒史博物馆改造:设计亮点与沉浸式参观体验全解析
-
分享 01-26
前述:中国酒史博物馆改造
中国酒史博物馆,位于我国最大的名白酒生产基地之一——山西杏花村汾酒集团有限责任公司。始建于1984年,后经几次扩建,逐步完善。它是全国同类企业中建馆最早、馆藏最丰富的专题博物馆之一。以“传承国宝,清香久远”为宗旨,是对中国第一文化酒最具权威的诠释和佐证,彰显了一个高品质、高定位、高水平的汾酒文化历史长廊。
同时,馆内的复古生产线、成品包装线,能让参观者亲眼目睹汾酒的制作过程,了解百年汾酒的文化诗韵。看完制作过程后,还可以在陈年酒库中,品尝到最纯正的汾酒系列陈年佳酿。工作之余,到杏花村小住几日,或花间独酌或朋友聚餐,能获得一种独特的诗酒文化享受。

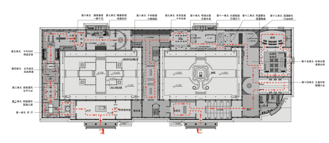
平面布局:展示馆参观动线思考
整个展厅流线以“贯穿展厅,不走回头路”为原则。通过单向连贯式的流线使整个展厅的参观秩序和人流分布更加合理,同时也保证了整个参观过程的安全与参观效果。通过人流动线的引导,指引着参观者循序渐进,层层深入。


博物馆建设的意义
展厅,是一个联系过去和未来的桥梁,我们的展厅需要更多的未来,而不仅仅是过去。我们希望更多的中国人、年轻人爱上汾酒。所以,这个馆会告诉观众,一个继续爱她的理由。我们想做的是在传统中,发现新;在发现中,爱上传统。做一个有回忆的“山水自然”之馆。

空间设计:效果图设计思考
博物馆展陈设计需要将馆藏文物的价值传达给观众的同时,展现出每一件文物所具有的深刻内涵。博物馆比一般空间有着更高的“开”(展示与体验)要求,根据不同博物馆的文化内涵,提取独特的文化符号,在空间上融合贯通,形成博物馆自身的语言体系。博物馆展陈设计是一门复杂的综合性艺术,需结合建筑空间、材料、照明、科技及美学等方面,将博物馆的风格和设计理念准确落地呈现。



















免责声明:
1、以上图片及资料内容来源于网络,由我方整理,版权归原作者及其公司所有;
2、本资料仅供学习研究之用,不得用作于商业用途,若侵犯到您的权益,请与我们联系删除;
3、本文章版权归本公众号所有,未经同意不得随意转载,若恶意侵权将追究其法律责任。
- 设备组成
- 无
- 参考预算
- 无
最近发布
交流/沟通/咨询/免费方案分享
