- 图片
汉能清洁能源展示中心:1900㎡清洁能源展厅设计与沉浸式体验
-
分享 2025-10-29
©CreatAR Images, Ulf Büschleb
德立柏林和德立创意策划正在与汉能控股集团合作,共同为这家全球领先的太阳能电池板和可再生能源生产企业设计独特的展厅和展览概念。此次展览的主题是围绕能源生产的历史和未来展开,旨在向观众展示能源领域的创新与进步。
Deli Berlin and Deli Creative Planning are cooperating with Hanergy Holding Group to jointly design a unique showroom and exhibition concept for this world-leading solar panel and renewable energy production enterprise. The theme of this exhibition revolves around the history and future of energy production, aiming to show the audience the innovation and progress in the energy field.
汉能清洁能源展示中心
Hanergy Clean Energy Exhibition Center
-- -
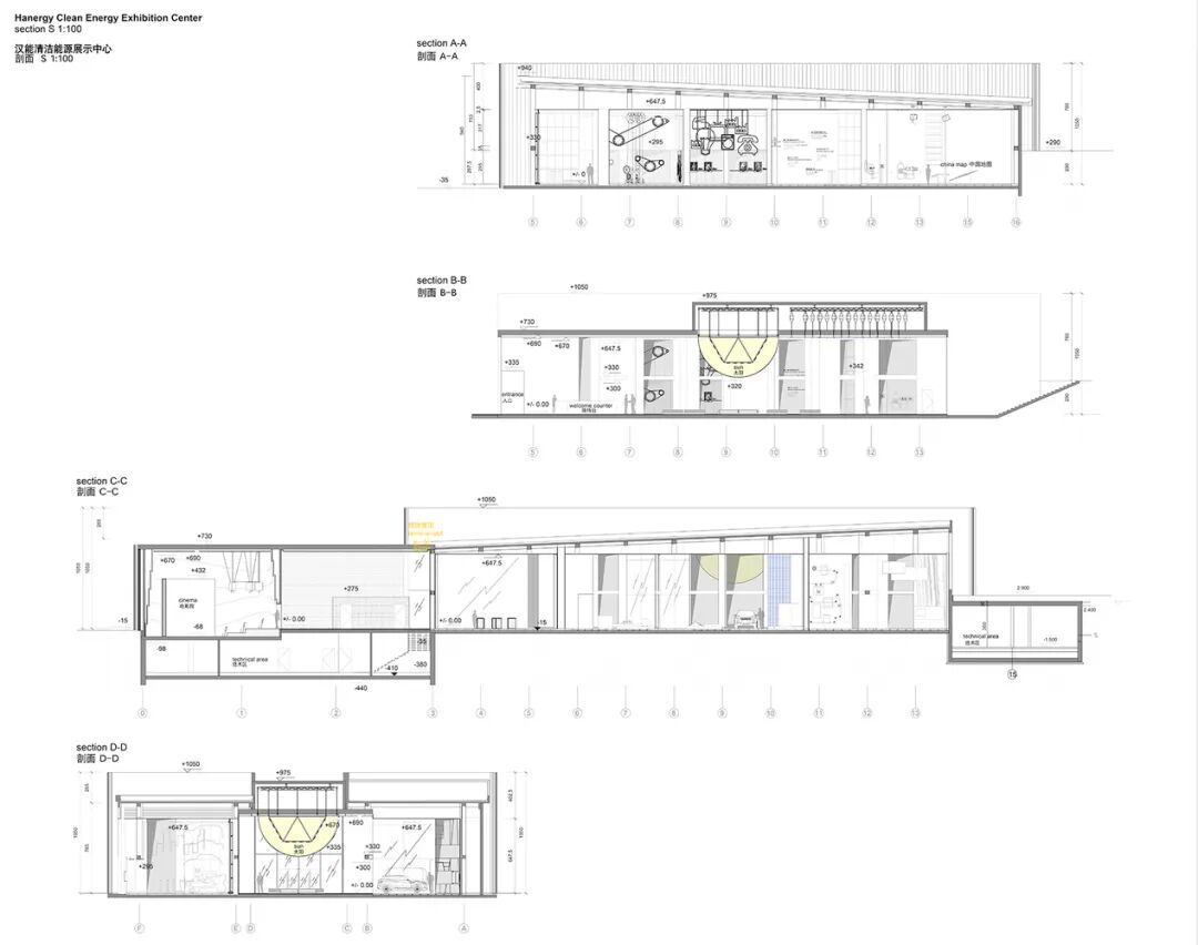
该清洁能源展馆占地面积超过1900平方米,是独具特色的展览体验中心。通过180°的巨大电影屏幕,观众可了解到汉能的发展历程、取得的成功以及可持续能源生产的未来。为此,德立柏林正在精心制作一段长约10分钟的影片,当中不乏使用特殊摄像机拍摄、无人驾驶飞机捕捉和电脑影像合成技术(CGI)制作的,令人叹为观止的镜头。
The clean energy exhibition hall covers an area of more than 1,900 square meters and is a unique exhibition experience center. Through the huge 180° movie screen, the audience can learn about Hanergy's development history, success and the future of sustainable energy production. To this end, Durblin is crafting a roughly 10-minute film that includes breathtaking footage shot with special cameras, drone capture and computer graphics (CGI).
©CreatAR Images, Ulf Büschleb
©CreatAR Images, Ulf Büschleb
©CreatAR Images, Ulf Büschleb
©CreatAR Images, Ulf Büschleb
展厅的设计将以融合艺术和技术的方式呈现,以引人入胜的形式展现能源生产的历史演进。通过沉浸式的展示手法,参观者将沿着时间轴穿越过去的世纪,了解能源产业的发展历程,从传统能源到现代的可再生能源,感受人类在能源领域取得的伟大成就。
The design of the exhibition hall will be presented in a fusion of art and technology, showing the historical evolution of energy production in a fascinating form. Through immersive display techniques, visitors will travel through the past century along the time axis, understand the development process of the energy industry, from traditional energy to modern renewable energy, and feel the great achievements of human beings in the energy field.
©CreatAR Images, Ulf Büschleb
©CreatAR Images, Ulf Büschleb
©CreatAR Images, Ulf Büschleb
©CreatAR Images, Ulf Büschleb
©CreatAR Images, Ulf Büschleb
展览的起点可能是模拟古代能源的利用方式,如原始火种的使用、水力转动的场景,让观众感受到能源的最初应用。接着,展示蒸汽时代的发展,比如模拟蒸汽机运转的景象,展示工业革命对能源生产的重大影响。
The starting point of the exhibition may be to simulate the use of ancient energy, such as the use of primitive fire and the scene of hydraulic rotation, so that the audience can feel the original application of energy. Then, the development of the steam age is shown, such as the scene of simulating the operation of a steam engine, and the significant impact of the industrial revolution on energy production.
©CreatAR Images, Ulf Büschleb
©CreatAR Images, Ulf Büschleb
©CreatAR Images, Ulf Büschleb
©CreatAR Images, Ulf Büschleb
随着展览的逐步推进,重点将转向现代能源的应用与创新。展示太阳能电池板的工作原理和生产过程,让观众了解可再生能源的重要性以及在当今社会中的广泛应用。利用互动装置和虚拟现实技术,参观者可以体验可再生能源的发电方式,如风力发电、潮汐能利用等。
此外,展厅还将展示未来能源生产的前沿技术和概念,如太空能源开采、高效储能系统等,让观众感受到能源领域不断迈向创新的努力。通过投影和全息显示技术,呈现未来能源生产场景,让观众感受到科技与想象力所带来的无限可能。
With the gradual advancement of the exhibition, the focus will turn to the application and innovation of modern energy. Demonstrate the working principle and production process of solar panels, let the audience understand the importance of renewable energy and its wide application in today's society. Using interactive installations and virtual reality technology, visitors can experience renewable energy generation methods, such as wind power generation, tidal energy utilization, etc.
In addition, the exhibition hall will also display cutting-edge technologies and concepts of future energy production, such as space energy mining, high-efficiency energy storage systems, etc., so that the audience can feel the continuous innovation efforts in the energy field. Through projection and holographic display technology, the future energy production scene is presented, allowing the audience to feel the infinite possibilities brought about by technology and imagination.
©CreatAR Images, Ulf Büschleb
©CreatAR Images, Ulf Büschleb
©CreatAR Images, Ulf Büschleb
©CreatAR Images, Ulf Büschleb
©CreatAR Images, Ulf Büschleb
设计团队将注重展览的整体氛围和视觉效果,运用光影效果和音效设计,营造出引人入胜的展示环境。同时,展览也将提供与观众互动的机会,让他们在参观过程中能够深入了解能源产业的发展,激发对可持续发展和环保意识的思考。
The design team will focus on the overall atmosphere and visual effects of the exhibition, using light and shadow effects and sound design to create an attractive display environment. At the same time, the exhibition will also provide an opportunity to interact with the audience, so that they can gain an in-depth understanding of the development of the energy industry during the visit, and stimulate thinking about sustainable development and environmental protection awareness.
©CreatAR Images, Ulf Büschleb
©CreatAR Images, Ulf Büschleb
©CreatAR Images, Ulf Büschleb
©CreatAR Images, Ulf Büschleb
这样的展览概念将为汉能控股集团带来独特的品牌形象和声誉,让观众更深刻地了解能源产业的历史与未来,同时也激发更多人参与到可再生能源领域的推进与发展中来。通过艺术与科技的融合,这个展厅将成为一个令人印象深刻的能源之旅,让人们对未来能源的美好愿景充满期待。
Such an exhibition concept will bring a unique brand image and reputation to Hanergy Holding Group, let the audience have a deeper understanding of the history and future of the energy industry, and at the same time inspire more people to participate in the promotion and development of the renewable energy field. Through the integration of art and technology, this exhibition hall will become an impressive energy journey, making people full of expectations for the beautiful vision of future energy.
©CreatAR Images, Ulf Büschleb
©CreatAR Images, Ulf Büschleb
©CreatAR Images, Ulf Büschleb
©CreatAR Images, Ulf Büschleb
项目信息--
建筑师:德立创意策划
项目年份:2014
摄影师:CreatAR Images, Ulf Büschleb
- 设备组成
- 无
- 参考预算
- 无
最近发布
-
2025-11-11
-
2025-11-11
交流/沟通/咨询/免费方案分享
