-
04-01
实验室过道变身开放式展厅:陕科大材料学院设计案例
实验室里建展厅?
实验室的过道里建展厅?
实验室里的过道里建开放式展厅?
没错!我们突破传统展陈边界,将实验室过道空间重构为开放式展厅,让过道的冷硬线条重构为流动的展陈脉络,用设计让“让科研成果真正‘活起来’”!
PART.01
空间篇--反复迭代 只为更好


设计方案1.0版
方案1.0设计整体以深邃的蓝色为主调,科研学术感氛围浓厚,低矮的展台设计带来开阔视觉与良好空间感。此版设计强化了“技术赋能文物保护”的主题表达,但却弱化了文物本身的情感温度与文化厚度。
设计方案2.0版
方案2.0色调改为双色搭配,以历史棕(取意地下文物的古朴质感)与科研蓝(呼应学术研究的深邃属性)构建视觉基底。此版设计墙面采用仿夯土纹理的棕色肌理漆,延续了文物保护的历史厚重感,然而,科技化维度展示略显单薄。
设计方案3.0版
方案3.0进一步深化文保主题表达,中央区域以M造型装置作为视觉焦点,设计巧妙解构学院logo的核心元素,强化专业属性。装置采用全实体结构,厚重且通顶,削弱了开放式展厅应有的通透感与呼吸感。
设计方案落地版
▼空间效果图







抢先看现场图



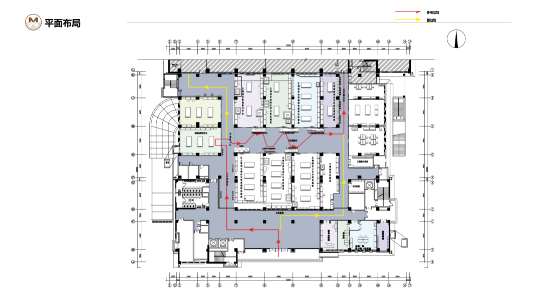
PART.02
平面篇--元素融入 内容尽现





PART.03
媒体篇--多元展示 帧帧细琢
交互界面设计
多媒体视频制作
本展厅多媒体视频旨在通过生动直观的视听语言,全面展示陕科大材料学院在文物保护材料与技术领域的前沿成果、实践应用与创新突破。
▼学院logo演绎视频
▼考古现场视频
▼荣誉成果展示视频
—未完待续—
空间设计 杨帆
平面设计 佳丽
文案策划 王萌
落地执行 郭凡
6152
