-
03-27
贵州省地质博物馆4D数码立体展区,球幕影院技术解析与方案效果图全览
项目概念设计
01
球幕影院——身临其境的全景3D现场
球幕影院采用自主研发的独有图像处理技术、通过多台投影仪将高清影像投映到球型银幕上,通过实时同步、无缝拼接、几何校正处理和边缘融合技术实现场景的完美重建。观众置身其中,视觉被美轮美奂的画面全方位包裹,随着镜头的游历和立体音效的伴随,宛如身临其境!
以超现实的视觉感受配以特殊的、刺激性的效果同步表现,以仿真的场景与特别的机关设置来模仿实际发生的事件;在产生栩栩如生的立体画面的同时,随着剧情变化,使观众参与其中并全身心地融入到剧情之中,体验虚幻仿真、惊心动魄的冒险旅行。




观众不仅可以观看自然景观,同时还能体验自然景观中不可能欣赏到的视觉角度。镜头的特殊走位,感受身临其境的冒险体验!
球幕影院自身的特殊性,赋予场景立体感,脱离3d眼镜也能展现出三维立体效果。动物、植物,一切的画面都是真实立体的展现在眼前。
02
纯三维建模,根据曲面尺寸定制影片
超大视角超越人眼可及范围,告别边缘提醒,让游客完全进入剧情,尽情享受虚幻世界带来的奇幻体验。



方案设计
01
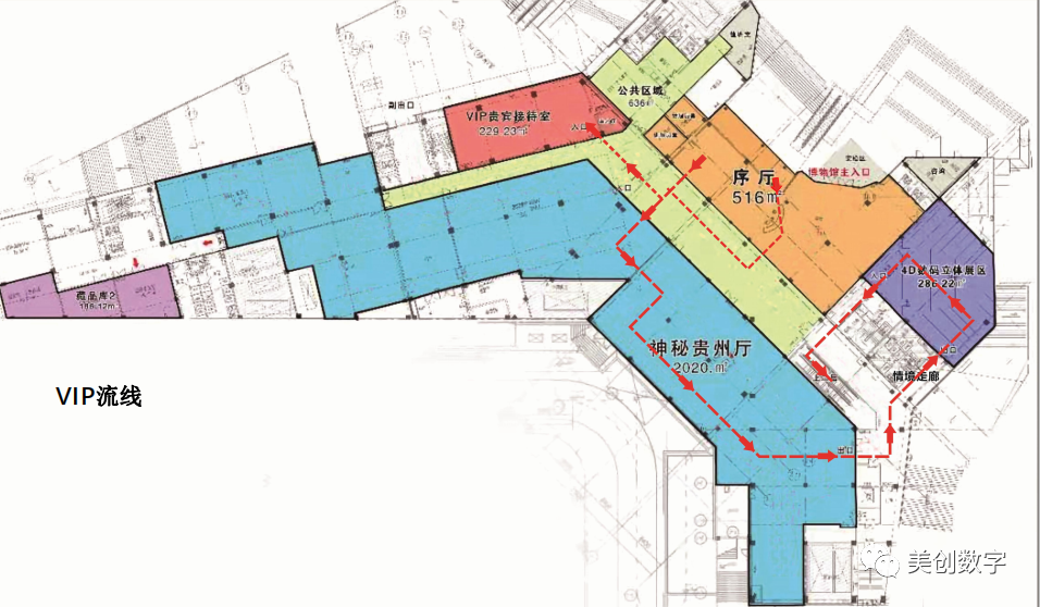
平面设计图



02
方案效果图




4295
