-
01-28
企业展厅设计全流程解析:从调研到落地的五个关键阶段
前述:在商业竞争愈发激烈的当下,相关数据显示,超 80% 的客户会因企业第一印象影响合作意愿,而企业展厅作为展示企业实力、文化与产品的前沿阵地,无疑承载着塑造 “第一印象” 的重任,其设计至关重要。据市场调研机构统计,参观者对企业展厅的平均停留时间仅在 30 - 45 分钟之间,要想在如此有限的时长里脱颖而出,一个优质的企业展厅设计,方能精准传达企业核心价值,给参观者留下深刻印象。



如何设计好一个企业展厅?这是众多企业在塑造品牌形象、拓展市场时都极为关注的问题,同时也是身为展馆设计师的我们持之以恒钻研践行之事。在设计企业展厅的时候,我们通常分为五个关键阶段,以此保障设计与规划施工能稳步落地。
那么如何做好一个企业展厅,我们通常分为五个阶段;
一、深度洞察的前期调研
这一阶段是整个展厅的基石,一般会花费1-2周的时间。我们要与企业多个层级深度沟通,问卷调查、面对面访谈都是常用手段,至少收集几份来自不同部门员工的有效反馈,以此明晰企业发展脉络、核心业务与独特文化。同步展开市场调研,分析近百份行业报告,研究超几十个竞争对手展厅,精准定位目标受众喜好、痛点,为展厅锚定差异化方向。
二、创意迸发的方案设计
设计师团队拿到调研结果后,设计师们就开启为期1-2周的创意孵化期。便开启头脑风暴精心打磨方案。超半数的创意灵感,源于对同行业标杆展厅案例的分析借鉴,以及当下流行设计趋势的捕捉。从空间布局草图,到初步 3D 效果图,从色彩搭配预案,到材质选用建议,一份完整的设计方案逐渐成型,其间还会依据反馈修改2-3次,力求契合企业期待。
三、精雕细琢的深化设计
方案敲定后,进入更耗时的深化设计环节,大概持续2-3周。每一处展陈细节都被放大审视,从多媒体互动装置的脚本撰写、技术选型,到定制展具的精确尺寸、承重考量,都要事无巨细。与施工、技术团队高频次对接,开至少 5 次跨部门研讨会议,提前化解 80% 潜在施工难题,保障方案落地性。
四、井然有序的施工落地
施工期跨度较大,小型展厅约6-8周,大型综合性展厅则可能3-6个月。施工团队依照深化图纸,推进,强弱电、广告装饰等装修工程,周度汇报进度。项目经理现场督工,严格把控质量,依照超 50 项施工标准验收关键节点,一旦偏差率超3%,立即整改,确保工程按部就班。
五、严苛细致的验收优化
竣工并不意味着结束,1-2周的验收优化阶段至关重要。组建专业验收团队,依据上百项验收指标,对展厅装修品质、设备性能、展品陈列效果全检,记录所有瑕疵点。不达标的部分,梳理优先级,限时整改,整改完成率必须达到100%,才能让展厅惊艳亮相,开启它的使命之旅。

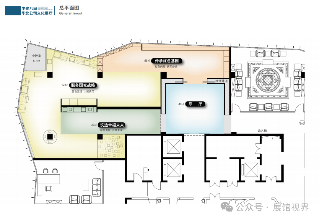
设计概述:



















空间设计:













结语:企业展厅设计意义重大,它宛如企业递向外界的一张立体名片,不仅集中展现企业的雄厚实力、深厚文化底蕴,更是产品与服务的惊艳秀场,是连接企业与参观者的关键桥梁。可这一关键任务,要是在执行过程中稍有差池,便极易踏入形形色色的雷区,进而严重影响最终的展示成效与宣传初衷。所以,在做企业展厅设计的时候,风格、色彩、空间布局、展示内容这几个关键板块,务必要做好全方位、深层次的沟通工作。
免责声明:
1、以上图片及资料内容来源于网络,由我方整理,版权归原作者及其公司所有;
2、本资料仅供学习研究之用,不得用作于商业用途,若侵犯到您的权益,请与我们联系删除;
3、本文章版权归本公众号所有,未经同意不得随意转载 ,若恶意侵权将追究其法律责任。
