-
2025-11-04
上汽通用五菱前瞻中心:汽车企业总部园区设计与品牌空间升级

©行知影像、陈伟健、诺梵
上汽通用五菱前瞻中心是一个具有创新精神的地方,不仅重塑了办公空间,还为汽车行业的未来发展提供了重要的支持和指引。
The SAIC-GM Wuling Forward Center is an innovative place that not only reshapes office space, but also provides important support and guidance for the future development of the automotive industry.
上汽通用五菱前瞻中心
SAIC-GM Wuling Prospective Center
-- -
项目位于上海浦东新区,以汽车品牌的“星际几何”概念为设计理念,对建筑进行了外立面形象升级。入口区域采用了深色金属雨棚和线性发光带元素,与原有建筑立面相结合,提升了建筑形象。办公区域采用银白色穿孔金属板,形成具有律动感的立面效果,同时保护内部隐私。
The project is located in Pudong New Area, Shanghai, and has upgraded the exterior image of the building based on the automotive brand's concept of "interstellar geometry". The entrance area adopts dark metal canopies and linear luminous strip elements, combined with the original building facade, enhancing the building's image. The office area is made of silver white perforated metal panels, creating a dynamic facade effect while protecting internal privacy.

©行知影像、陈伟健、诺梵

©行知影像、陈伟健、诺梵
入口前厅兼作新车媒体发布会中心,采用蓝绿色金属板延续外立面造型元素,呼应品牌精神。办公空间布置了大空间工作室和若干“第三办公空间”,为员工提供灵活多变的工作场所,并创造了协作与专注并存的氛围。
The entrance lobby also serves as the new car media conference center, using blue-green metal panels to continue the exterior design elements, echoing the brand spirit. The office space is equipped with a large workspace and several "third office spaces", providing employees with a flexible and diverse workplace, and creating an atmosphere of collaboration and focus.

©行知影像、陈伟健、诺梵

©行知影像、陈伟健、诺梵

©行知影像、陈伟健、诺梵

©行知影像、陈伟健、诺梵

©行知影像、陈伟健、诺梵

©行知影像、陈伟健、诺梵

©行知影像、陈伟健、诺梵
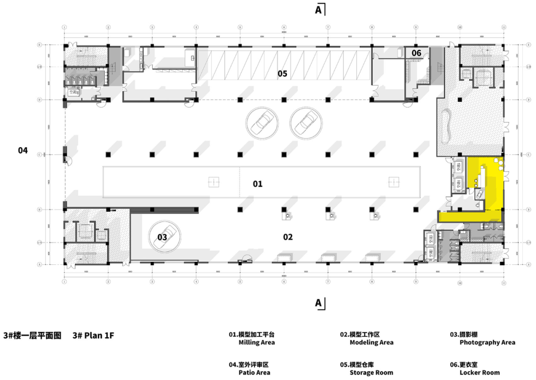
培训中心与各大汽车设计院校合作,培养优秀的设计师。超4K高清VR评审室为设计人员提供方案评审的便利,体现了品牌的技术先进性。
The training center collaborates with major automotive design schools to cultivate outstanding designers. The super 4K HD VR review room provides designers with the convenience of scheme review, which reflects the brand's progressiveness technology.

©行知影像、陈伟健、诺梵

©行知影像、陈伟健、诺梵

©行知影像、陈伟健、诺梵

©行知影像、陈伟健、诺梵
油泥工作室承担着造型研发的功能,前厅体现了汽车工业的严谨与秩序。廊道记录着企业大事年表,连接了前厅和油泥工作区。
The oil mud studio undertakes the function of styling research and development, and the front hall reflects the rigor and order of the automotive industry. The corridor records the timeline of the company's major events, connecting the front hall and the sludge work area.

©行知影像、陈伟健、诺梵


©行知影像、陈伟健、诺梵

©行知影像、陈伟健、诺梵

©行知影像、陈伟健、诺梵

©行知影像、陈伟健、诺梵

©行知影像、陈伟健、诺梵
未来,上汽通用五菱将继续注重设计的价值,依靠对未来的期待和梦想,创造出更多的未来生产力,为行业的发展注入新的活力。
In the future, SAIC GM Wuling will continue to focus on the value of design, rely on expectations and dreams for the future, create more future productivity, and inject new vitality into the development of the industry.



项目信息--
项目名称:上汽通用五菱前瞻中心
设计方:上海摩致建筑设计有限公司
设计时间:2019.05-2020.03
完成时间:2020.07
主持建筑师:邵科鑫、叶晨涛
项目建筑师:李超晶、陈伟健
设计团队成员:刘朝阳、赵颖、魏竞蕾、刘光辉、薛二军、曹佳佳、顾军,张鑫
家具合作商:诺梵(上海)系统科技股份有限公司
施工单位:上海半沪建设工程有限公司
项目地址:上海市浦东新区康桥路666号
建筑面积:13600㎡
摄影版权:行知影像、陈伟健、诺梵
