-
2025-10-31
保利和乐国际艺术中心设计解析:以儿童为本的专业艺术教育空间

©陈铭
本能特性远比刻意创造的个性重要。— N.J.哈勃瑞肯
这个项目对于艺术教育的态度非常清晰,而且充满了对孩子们本能特性的尊重。首先,业主提出不要童趣,而是要专业教育机构形象,这表明他们希望打造一个高端、专业的艺术培训机构,强调学术性和专业性。其次,业主要求空间设计必须以孩子的感受出发,这体现了对孩子们天性和舒适感的重视,希望创造一个与传统教学环境不同的、更加活泼和开放的学习空间。最后,业主要求艺术中心必须作为一个艺术空间存在于这座城市,这意味着他们希望这个艺术中心不仅是一个教育机构,更是一个文化地标,为城市的艺术生活做出贡献。
这些要求反映了业主对于艺术教育的深刻理解和独特见解,他们希望通过这个项目提供一个既专业又富有活力、引人入胜的艺术学习环境,激发孩子们的创造力和表现力,同时为城市的文化建设做出积极贡献。
保利和乐国际艺术中心
Poly Hele International Art Center
-- -
“调皮的泡泡圈”——我们的目标是用儿童的想象力打造一个化学艺术的乐园。这个艺术中心以孩子们最初的线条探索方式为灵感,以调皮的圈圈为秩序,打造简洁的空间,并设置直观简单的环形路线。孩子们可以通过曲折的视觉探索空间,线条的运动激发了他们对艺术的兴趣和好奇心。我们希望这个艺术中心在功能上是一个教育场所,在精神上则是一处让心灵宁静的窗口。

©陈铭


在入口处的8米高空间,我们打造了一种充满仪式感的体验,让人们进入艺术中心时仿佛踏入了一个神圣的教学空间。这个空间以其静谧的特质而著称,在光线的照耀下,它触动着每一个心灵。

©陈铭

©陈铭

©陈铭

©陈铭

©陈铭
通过空间设计,我们希望激活孩子们与生俱来的艺术感知,将艺术融入他们的生活中。每一个角落都是一个教育的启发,让孩子们在探索中学习、成长。从简洁的线条到温暖的光影,每一个细节都在引导他们发现美的力量,激发他们的创造力和想象力。这个空间不仅是一个艺术中心,更是一个教育的殿堂,让孩子们在玩乐中获得知识,培养对艺术的热爱和理解。

©陈铭

©陈铭
在我们的艺术中心,课室不再受限于关闭的门,而是处处都是舞台。公共空间的聚合充满趣味,它们可以是一堂体验课的场所,也可以是一场迷你音乐会的舞台。我们特意在反圈小世界设置了公共区域和个人空间,让每个人都能够尽情释放自我,无所顾忌地享受艺术的魅力。这样的设计不仅创造了多样化的学习和表演场所,也让每个人都能够在这个空间里找到属于自己的位置和情感共鸣。

©陈铭

©陈铭

©陈铭
我们的课室设计遵循着和谐的人性尺度,避免了过大或过小的空间尺度,以免让学生感到畏惧或压抑。我们采用了多功能可变的家具组合,这样的设计不仅可以创造更多种教学模式,还能够激活孩子们对艺术的兴趣和好奇心。学生们可以根据需要随意移动和组合家具,打造出适合他们学习和探索的空间。这样的设计不仅能够提升学习的效率,还能够增加学习的乐趣,让孩子们更加愿意参与到艺术教育中来。

©陈铭

©陈铭

©陈铭

©陈铭

©陈铭

©陈铭
我们采用大面积的光膜来设计光线,以柔和的照明功能为舞者们创造出最美、最自信的表现空间。这种设计使舞者的轮廓线条得以清晰呈现,让他们在舞台上展现出最佳的姿态和表现力。人与空间的艺术相互融合,创造出一种仿佛诗歌般的宁静氛围。在这样的环境里,舞者们能够更好地沉浸在艺术的表达中,展现出他们的才华和魅力,同时也让观众们沉浸在美妙的艺术氛围中,体验到心灵的愉悦和满足。

©陈铭

©陈铭
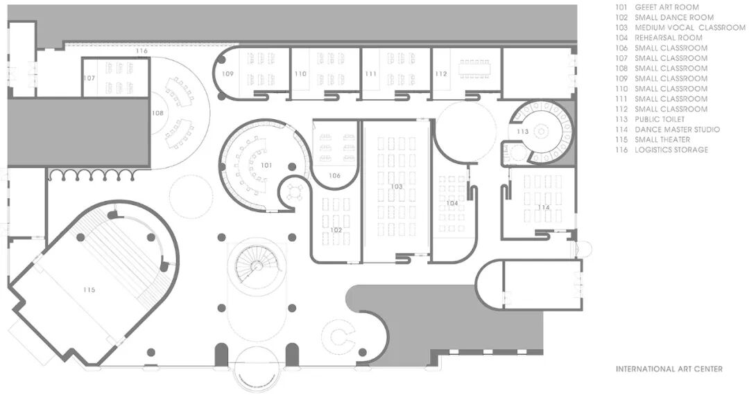
根据功能需要,我们对声量分贝进行了调整,并递进地安排了课室团组。在首层,入口左侧是小剧场,它独立分布,既有独立方位,又有散场人流的空间。中间是舞蹈课室团组,而最深入内部则是安静的小课室团组。
而在二层,沿窗边自然光最充足的是美术课室,中间是乐器教室的组团和一对一钢琴室,而最深入的课室则是带有专业隔音系统的声乐教室团组。
我们运用了孩童最早期麻线团绘画的方式来设计课室平面,让孩子们通过弯曲的视觉探索空间。空间的线性运动不仅启发了他们的灵感,也激发了他们对艺术的兴趣与好奇心。这样的设计不仅提供了功能性的课室安排,还为孩子们创造了一个富有创造力和想象力的学习环境。

©陈铭
艺术是与生俱来的权利,不受边界限制。在我们的环境设计中,我们提供了更多的舞台和场所,旨在激励和激活每个人内在的艺术潜能。孩子们在自由的环境中形成自己的规则,在有趣的空间里体验学习的乐趣。

©陈铭

©陈铭



项目信息--
项目开发商:保利发展 保利和乐教育
作品名称:保利和乐国际艺术中心
设计单位:PONE ARCHITECTURE
项目总控:梁穗明
主笔设计:梁穗明
设计总监:何思玮
设计团队:罗品勇·李炜龙·华月柳·江键韵·洪俊能· 陈远淼·林晓亮
助理设计:黄朗平·陈炜婷·赖宇霖
行政执行:邓平好·刘亚平
品牌策划:梁嘉茜.·龚婉仪
项目摄影:陈铭
影视制作:东晴 SAPLINGFILM
案例面积:项目总面积:5435㎡
首层面积:2235㎡ 层高 3.4m
二层面积:3200㎡ 层高 2.8m
设计时间:2017年
建成时间:2018年
建成地点:武汉
