-
2025-10-31
北京华成智云总部建筑设计解析:安防企业办公与互动展示空间设计案例

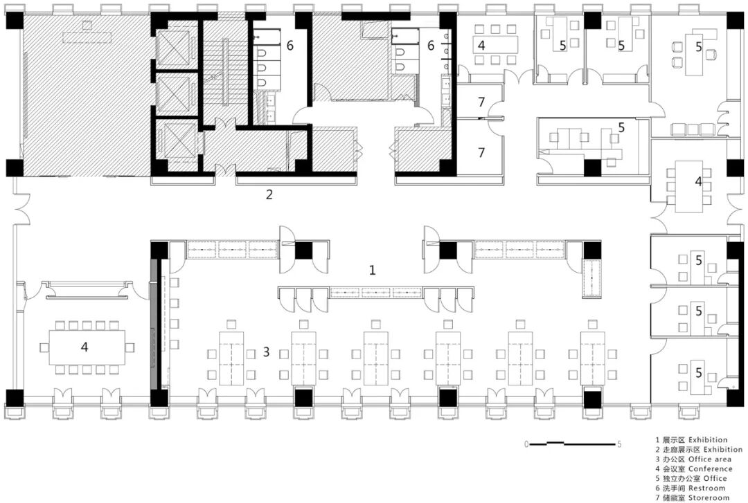
北京华成智云软件股份有限公司总部位于北京诺德中心写字楼,建筑面积996平方米。建筑采用框架结构,内部有四根一米见方的柱子。公司主营安防业务,因此总部设计要将企业的展示功能与办公空间有机结合。
华成智云总部
Huacheng Zhiyun Headquarters
-- -
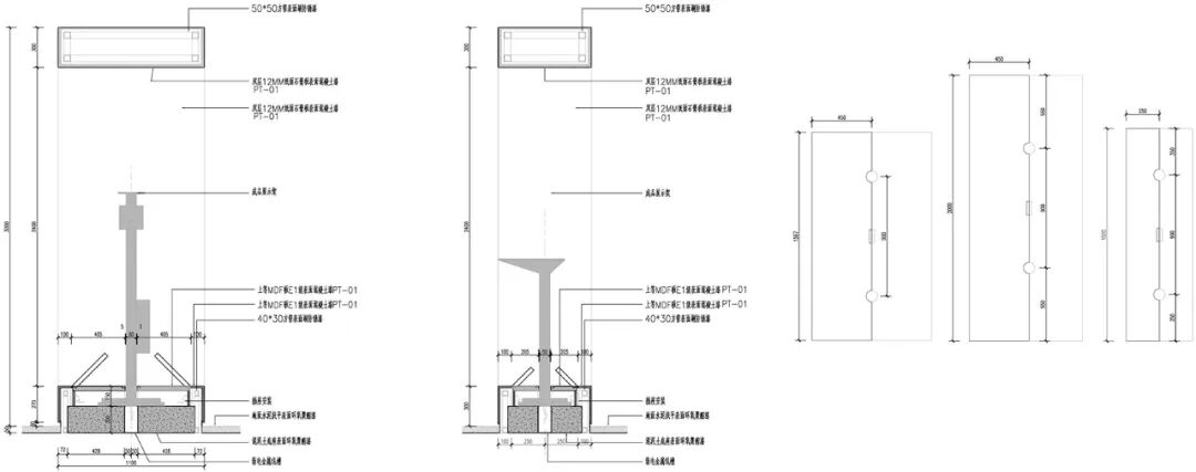
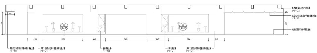
在建筑设计中,围绕三个“无界”展开,首先是功能无界。建筑功能涵盖办公、产品展示、影像展示、产品互动展示等,这些功能被完全融合在一个空间体系内。围绕现场四个柱子设计互动展示空间,主要用于安防产品的互动展示。展示空间内设置展架,将产品与互动端相结合,实现实时互动。独立办公室设计在主要空间的外围,保证一定的隐私性。办公空间和产品展示墙位于展示空间的南北两侧。这三组功能将主要空间分割为三条线和一条主要通道,各种功能之间相互影响、相互呼应。办公空间与员工日常工作成为企业展示功能的一部分,同时展示空间也成为办公空间的延伸,通过展示空间内的展品与互动装置给员工带来灵感。


第二个“无界”是空间无界。设计将空间的视觉与流线相融合,使得整体呈现出连续、流畅的感觉。互动展示空间采用线型品字布局,负型形成员工流线。通往独立办公室的主通道两侧同样设置互动展示空间与产品展示墙,确保独立办公室人员必经展示群组空间。通过这种设计,将人们的行为路线与功能结合,使两种空间完全融合在一起。
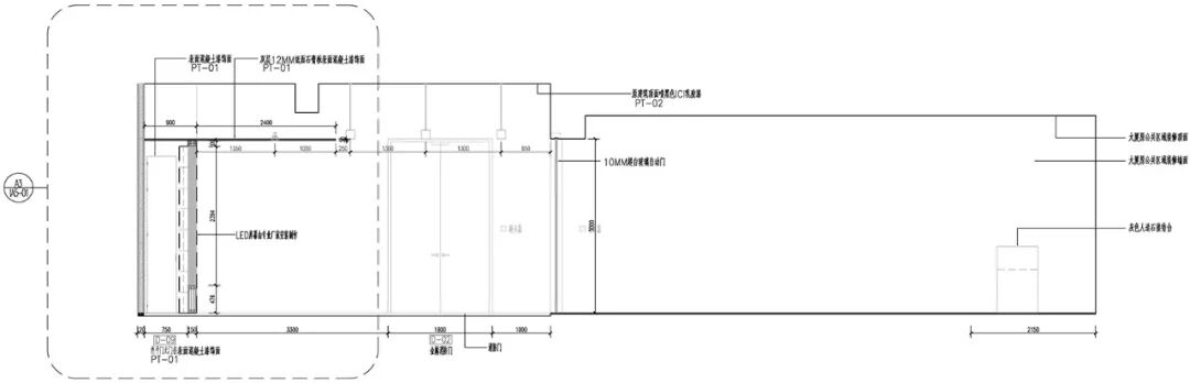
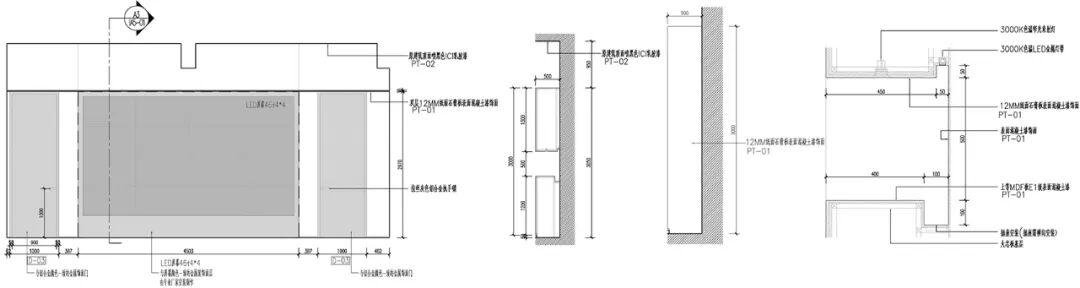
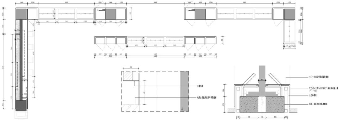
互动展示空间的造型设计犹如画框,外部实体与内部虚空相映衬、相依附。空间的高度控制在3米以下,墙体、灯具吊装、门和玻璃的高度都保持在三米以下。三米以上的空间整体涂黑,将管线管道全部隐藏于黑色的天花板内。墙面采用混凝土漆,地面使用混凝土自流平,两种材质在视觉上相融合。办公空间内穿插实木家具与柜门,体现出舒适人性化的办公环境,与互动展示空间的灰色系相协调。



第三个“无界”是时间无界。设计考虑到可持续发展的理念,企业未来计划将这个空间转变为企业博物馆。因此,在现有和未来的时间段内都做了充分的考虑。现有的办公空间尺度既可作为办公空间,也可转为展示台空间,用于展示企业产品研发成果。只需移除一些办公椅,就可满足展示台的尺度需求。
独立办公室的隔墙采用独立轻钢龙骨双层石膏板墙体,未来可以拆除内部隔墙,形成一个完整的独立展厅,用于展示高精安防研究产品和企业的保密产品。因此,设计将不同时间段的功能与形式需求融合在一起,实现了空间设计的可持续发展。











项目名称:华成智云总部
设计方:北京班得建筑设计有限公司
设计年份:2017
完成年份:2018
主创:周堃、徐琳
设计团队:曹正仁、葛红军、董红
项目地址:北京丰台诺德中心
建筑面积:996㎡
摄影版权:金伟琦
客户:北京华成智云软件股份有限公司
品牌:水泥自流平、混凝土漆、木材
