-
2025-09-16
法国卡纳克巨石博物馆:沉浸式体验史前文明与地域共鸣
漫步在卡纳克的巨石遗址,我们感受到了围绕着它们的神秘感。面对世界上第一座纪念性建筑 的领土规模是一种令人惊叹的体验。这些竖立的矿物是象征性的结构,暗示着穿越、相遇和别处。通过观察它们,我们可以重温人类最初奇迹的源头。

这些巨石纪念碑是数千年来集体努力的成果,它的建造只能让我们质疑今天 形成社会和团结的能力。它本身就包含着一种向他人传递和遗赠的真正慷慨。



我们的项目受到这些访问以及从中提取的概念的滋养,例如地面、垂直性、极限、物质性等。通过从互补二元性的角度来处理它们,我们可以定义看似相互对立但实际上相互补充的建筑寄存器,我们想象了一个具有直接建筑和对比形态的项目。



项目地点虽然由于居住环境而变得复杂,但其地理位置十分重要,因为它标志着该镇的入口,并构成了各个巨石遗址和卡纳克镇中心之间的明显界面。在城市规模上,围绕阈值和透视效果构建的荒原景观的恢复旨在加强这种地域共鸣。
作为从奥雷抵达时可见的第一座机构建筑,博物馆成为了城市的标志,并且不断提升其高度。大型突现因其独特的体积和令人回味的模式而引人注目。它形成了一个标志,并且与其所在的领土和收藏品有联系。



直接的城市背景需要从中抽象出来,特别是在展览路线方面。然而,博物馆并没有背弃这座城市。低矮的画廊,非常开放和活跃,呈现出一种活泼和热情的氛围。它汇集了用于娱乐、教育和工作的所有空间。它围绕着教育花园的出现和划定界限,在空间上和象征意义上将收藏和调解置于博物馆的核心。


无论是内部还是外部,其材质都非常出色。我们不会通过添加饰面来掩盖其建筑本质,而是专注于其内在品质。有时,饰面是原始的和富有表现力的,就像出现的大型立石一样,有时是光滑的和经过加工的,就像舞台布景家具的实心橡木组件一样。



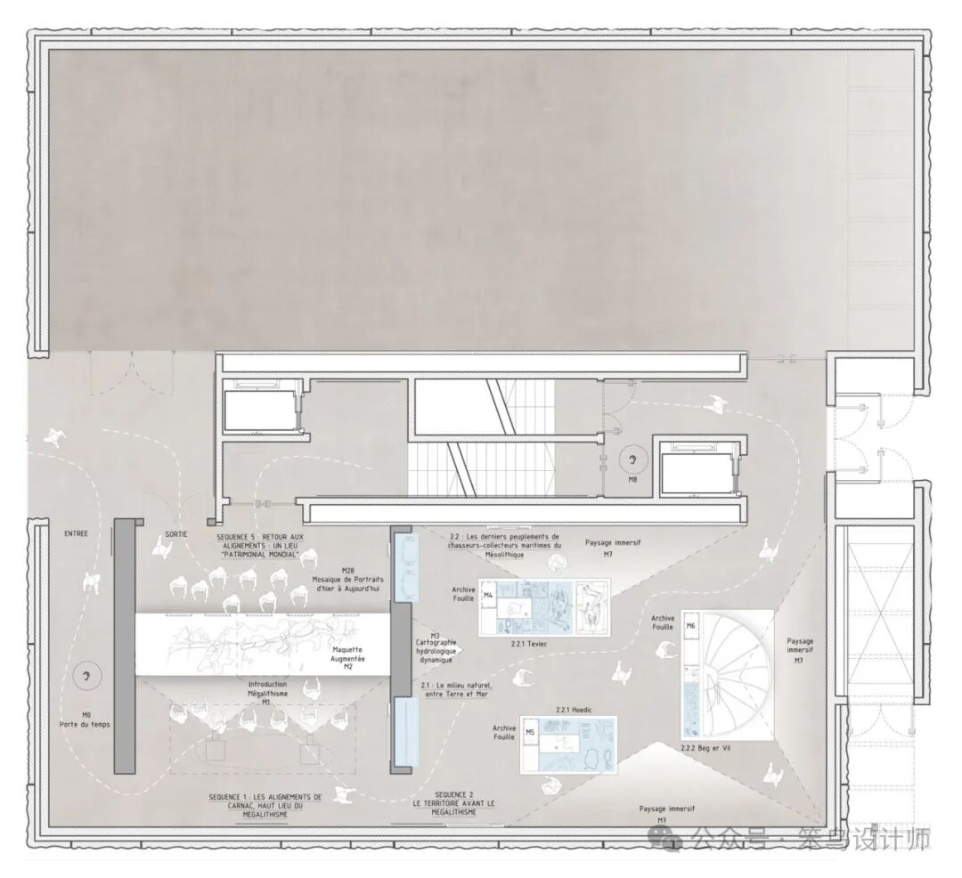
常设展览分布在三个楼层,洛克马里亚凯 (Locqmariaquer) 大型雕刻石碑的复制品直接穿过了整个展览。游客可以逐步地漫步其中,将自己身体的人类尺度与这块巨石的雄伟规模进行比较。
在刻意营造的沉浸式场景中,设备和家具被视为岛屿。这样一来,空间的边缘就被清理干净了:以图形和数字形式建立了卡纳克过去和现在领土以及更广泛的莫尔比昂的多重联系。

在路线的最后一部分,一个宽大的开口提供了圣米歇尔古墓的独特景观。游客重新认识了当前的景观及其独特的历史。
