- 图片
- 江东控股集团企业展馆设计:产业投资、资产运营、文旅康养与城市建设
-
分享 2025-10-14
江东集团
集团展厅
子集团LOGO设计
集团品牌宣传片




国家磐石 中流砥柱
国有企业是壮大国家综合实力、保障人民共同利益的重要力量,必须理直气壮做强做优做大,不断增强活力、影响力、抗风险能力,实现国有资产保值增值。 要坚定不移深化国有企业改革,着力创新体制机制,加快建立现代企业制度,发挥国有企业各类人才积极性、主动性、创造性,激发各类要素活力。要按照创新、协调、绿色、开放、共享的发展理念的要求,推进结构调整、创新发展、布局优化,使国有企业在供给侧结构性改革中发挥带动作用。
“让国有企业成为党和国家最可信赖的六个力量”
· 成为党和国家最可信赖的依靠力量
·成为坚决贯彻执行党中央决策部署的重要力量
·成为贯彻新发展理念、全面深化改革的重要力量
·成为实施“走出去”战略、“一带一路”建设等重大战略的重要力量
·成为壮大综合国力、促进经济社会发展、保障和改善民生的重要力量
·成为我们党具有许多新的历史特点的伟大斗争胜利的重要力量

内蕴深厚
江东控股集团前身为马鞍山市建设投资有限责任公司,成立于1999年3月,是根据马鞍山市人民政府成立的国有独资有限责任公司。2010年,马鞍山市市委、市政府深化投融资体制改革,在建投公司基础上整合市工投、市能交投,重组成立马鞍山市城市发展投资集团有限责任公司,即马鞍山市城投集团。2014年,更名为“江东控股集团有限责任公司”。
城市柱石
集团定位为市级国有资本投资运营公司,以服务全市发展战略、优化地方国有资本布局、提升国有资本活力为职责;
承担政府指令性任务,依法对所投资企业行使股东权力,对授权范围内国有资产承担监管职责,维护国有资本权益。
多元发展
集团下辖产业投资集团、资产运营集团、文旅康养集团、城市建设集团4个子集团,业务板块涵盖产业投资(股权、基金)、金融控股、资产运营、土地整治、地产开发、文体旅游、医疗养老、公用事业、基建投资等多个方面。
勇担重责
产业投资集团:管理政府投资引导基金,通过股权、基金投资支持马鞍山市战新产业发展;提供担保、小贷、典当等类金融服务,助力中小微企业解决融资难题,支持实体经济发展。
资产运营集团:聚焦地产开发与资产运营,提供高效专业的商业地产和产业地产投资、建设、运营,以及提供人力资源、安防保卫、物业管理等服务。
文旅康养集团:围绕景区开发、酒店宾馆、体育演艺、健康养老等项目,服务运作全市重大文旅康养项目,全力推进马鞍山市文旅康养产业发展
城市建设集团:承担城市基础设施、市政公用事业、能源、环保、交通等项目投资及运营管理;实施土地整理开发和成片建设运营




核心关注点:
经济贡献 社会责任整体经营 党建文化
感受江东控股集团强大的集团实力与蓬勃向上的企业发展势能;坚持党建引领,不忘初心,牢记使命,积极回报社会,为马鞍山市城市建设及经济发展做出突出贡献。
核心关注点:
企业发展 项目管理 风险控制 业务发展
感受江东控股集团蓬勃向上的发展势能以及江东控股旗下各业务健康、迅速的发展;了解江东控股集团科学、成熟的管理机制及运行机制。
核心关注点:
发展前景 士气风貌集团管理 人文关怀
感受江东控股集团坚持党建引领,务实进取思想积极,是其他企业值得学习的标杆; 员工对集团成就的认同感,打造集团荣誉感





以江东控股集团对马鞍山城市发展的突出贡献为切入点,表达江东控股集团与城共生,与城共进的主题内涵
将江东控股集团的发展与马鞍山市的城市发展紧密联系在一起,与城共赢,再建新功!


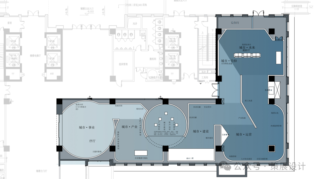
从事业-产业-建设-运营-信仰-未来六个维度向观众全面、准确的展示江东控股集团综合实力,观众在浏览展厅的过程中不仅能感受到江东控股集团作为马鞍山市城市建设与经济发展所起的引领作用,更能感受到集团栉风沐雨、蓬勃奋进的发展势能。
















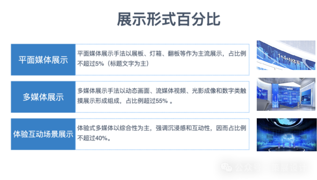
展示馆入口设有掌纹感应自动门,随着讲解员将手放置在感应区域,大门向两侧徐徐打开,伴随启动音效,整体灯光亮起,打造科技风舞台效果,奠定全馆科技感空间风格,整体造型简洁科技,在各大同类展厅中独树一帜


LED矩阵屏的方式进行呈现的主题形象,待机时可当作欢迎墙使用,亦可播放集团印象片,从成立初衷出发,展示集团对马鞍山市建设做出的突出贡献,引出集团的改革与产业升级等内容;序厅上方灯箱选用了集团logo作为灯箱图案,配合环形灯带及造型,将元宇宙概念完美融入展陈理念;地面展现马鞍山市的城市规划地图,彰显江东控股集团为马鞍山城市建设做贡献的历史担当与使命

序厅空间以纯净白作为空间主色,辅以科技蓝点缀,极具未来科技感,彰显集团恢宏大气的企业气度与格局;
内容上由主题形象墙、1+4+N体系简介、发展历程与领导关怀四部分组成,整体给参观者留下集团初步印象的同时,也将集团发展与城市建设联系在一起,为展馆后续展项展示拉开序幕

发展历程以拼接屏形式展示集团自成立至今发展中的重大事件与成就,屏上可见详细历程时间轴,触控屏调取目录(也可pad操控)选择其中一个节点,屏上即呈现该时期重大事件介绍相关内容;
领导关怀部分以电子图文的形式,将各级领导的调研、考察、讲话等重要时刻记录下来,展现了各级领导对江东控股集团的殷切关怀


集团产业布局规划与整体经营数据区域通过内嵌屏的空间设计思路营造空间层次感,配合科技感墙面线条,营造整体数字化、科技风空间基调,结合双屏联动,相辅相成,直观展示集团的实力及影响


集团业务板块打造元宇宙沉浸式cave空间,空间内四台控制柱和弧形投影幕联动分别讲述江东旗下四大子集团所涉足的九大业务范围,与上方穹顶图案及地面形成一个整体,使参观者沉浸在江东集团整个业务场景中

- 设备组成
- 无
- 参考预算
- 无
