-
2025-11-04
易星球数字电竞展厅设计:科技娱乐新地标,打造年轻人社交体验中心

©协调亚洲-夏宇
协调亚洲为上海热爱科技的千禧一代打造了一个混合现实的游乐场,这个1250平米的娱乐胜地展现了一个透过线下体验与社交活动的科技生活方式。
Coordinating Asia has created a mixed reality amusement park for the millennial generation in Shanghai who love technology. This 1250 square meter entertainment destination showcases a technological lifestyle through offline experiences and social activities.
混合现实的游乐场 I 易星球
Mixed Reality Amusement Park I Yi Planet
-- -
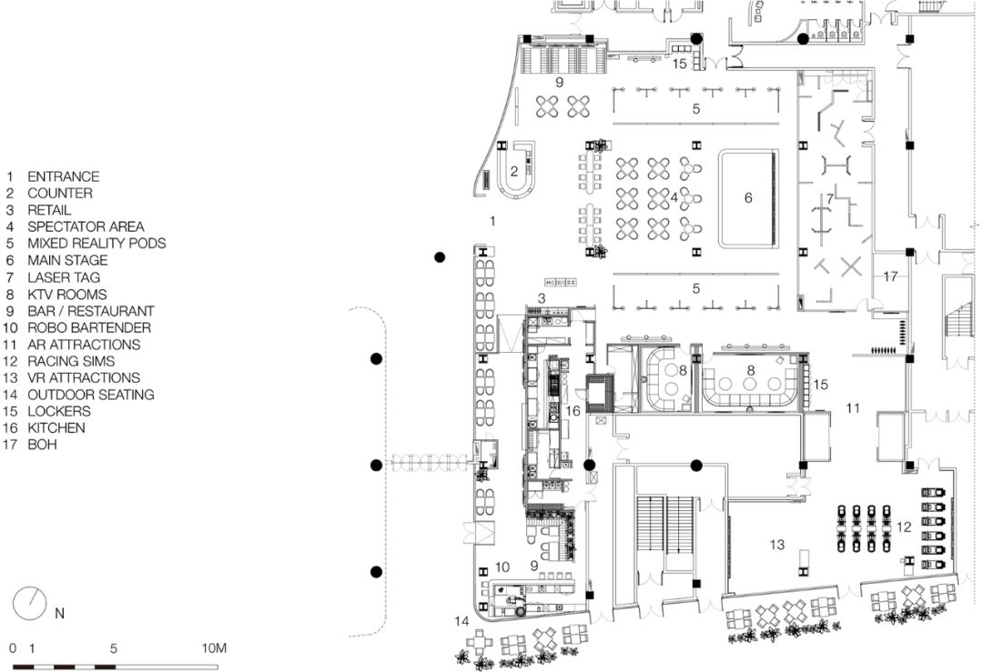
易星球致力于为中国95后、00后一代的年轻人打造一个综合娱乐、休闲与刺激体验的混合现实汇集地。作为一个多元化且灵活多变的场地,易星球提供了举办现场电玩竞赛、讲座、编程工作坊以及各种活动的机会,邀请顾客通过线上、线下的方式参与其中,模糊了虚拟与现实的疆界。
Yi Planet is committed to creating a mixed reality gathering place for the 95s and 00s generation of young people in China, integrating entertainment, leisure, and stimulating experiences. As a diverse and flexible venue, Yi Planet provides opportunities to host live video game competitions, lectures, programming workshops, and various activities, inviting customers to participate online and offline, blurring the boundary between virtual and reality.

©协调亚洲-夏宇

©协调亚洲-夏宇
空间设计很好地捕捉了虚拟体验与现实世界社交活动的交融之境。大面积使用紫铜、铝以及玻璃等材质,使得空间充满动态数字屏的未来感,穿孔与波浪铝板不断反射LED墙面的光芒与色彩,营造出数字与实体交错的情绪。透明的可折叠LED屏幕墙环绕着主舞台,让不同区域中的顾客视线无阻,连结各个活动中的玩家与观众。
The spatial design effectively captures the integration of virtual experiences and real-world social activities. The extensive use of materials such as copper, aluminum, and glass fills the space with a futuristic sense of dynamic digital screens. Perforated and wavy aluminum panels continuously reflect the light and color of LED walls, creating an emotional interweaving of numbers and entities. The transparent foldable LED screen wall surrounds the main stage, allowing customers in different areas to have unobstructed views and connecting players and audiences in various events.

©协调亚洲-夏宇

©协调亚洲-夏宇

©协调亚洲-夏宇
天花上的LED灯条在空间中舞动,为顾客提供指引,并在主舞台区构成一个冲击力的网格结构。舞台区设置了各种活动,从表演到现场电玩竞赛赛事,从瑜伽课到编程工作坊,让不同社群可以在此聚会并相遇。
The LED light strips on the ceiling dance in the space, providing guidance to customers and forming an impactful grid structure in the main stage area. The stage area has set up various activities, from performances to live video game competitions, from yoga classes to programming workshops, allowing different communities to gather and meet here.

©协调亚洲-夏宇

©协调亚洲-夏宇
易星球不仅仅是一个游乐场,还提供了一系列线下的数字体验项目,如带有迷幻灯光特效的真人CS互动区、带有悬挂屏幕的虚拟现实游戏站以及无人机模拟器等,吸引了寻求刺激的年轻群体。
Yi Planet is not only an amusement park, but also offers a series of offline digital experience projects, such as a real person CS interactive area with psychedelic lighting effects, a virtual reality game station with hanging screens, and a drone simulator, attracting young people seeking excitement.

©协调亚洲-夏宇

©协调亚洲-夏宇

©协调亚洲-夏宇

©协调亚洲-夏宇

©协调亚洲-夏宇
餐饮区设有一个“机器人酒吧”,增添了整个高科技游乐场的氛围。设计精良的家具和月球造型灯光装置提升了整体未来感。
There is a "robot bar" in the dining area, which adds to the atmosphere of the entire high-tech amusement park. The well-designed furniture and lunar shaped lighting fixtures enhance the overall futuristic feel.

©协调亚洲-夏宇

©协调亚洲-夏宇
这个多功能的娱乐中心吸引了上海广大以科技为生活中心的社群,为他们提供了一个独特的社交体验和创新的娱乐选择。
This multifunctional entertainment center has attracted a large community in Shanghai that centers around technology, providing them with a unique social experience and innovative entertainment choices.


项目信息--
类型:娱乐与餐饮
地点:上海北外滩白玉兰广场一楼
任务:概念设计,深化设计,现场监理
范围:1,250 平米
完成时间:2021年
团队:迪尔曼·图蒙,桂琦,殷琦洛,虞音
客户:上海鹏隆网络科技有限公司
照片:协调亚洲,夏宇
最近发布
-
2025-11-11
-
2025-11-11
